Springe zum Hauptinhalt

Lagepläne

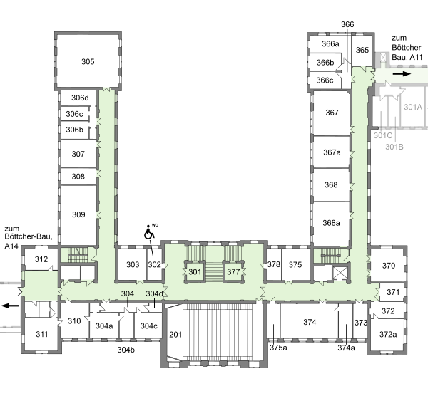
Campusplan – Straße der Nationen | Böttcher-Bau, A10

3. OG 2. OG 1. OG EG
*Böttcher-Bau, A10 *Böttcher-Bau, A10 *Böttcher-Bau, A10 *Böttcher-Bau, A10 *Böttcher-Bau, A10 *Böttcher-Bau, A10 *Böttcher-Bau, A10 *Böttcher-Bau, A10 *Böttcher-Bau, A10 *Böttcher-Bau, A10 *Böttcher-Bau, A10 *Böttcher-Bau, A10 *Böttcher-Bau, A10 *Böttcher-Bau, A10 *Böttcher-Bau, A10 *Böttcher-Bau, A10 *Böttcher-Bau, A10 *Böttcher-Bau, A10 *Böttcher-Bau, A10 *Böttcher-Bau, A10 *Böttcher-Bau, A10 *Böttcher-Bau, A10 *Böttcher-Bau, A10 *Böttcher-Bau, A10 *Böttcher-Bau, A10 *Böttcher-Bau, A10 *Böttcher-Bau, A10 *Böttcher-Bau, A10 *Böttcher-Bau, A10 *Böttcher-Bau, A10 *Böttcher-Bau, A10 *Böttcher-Bau, A10 *Böttcher-Bau, A10 *Böttcher-Bau, A10 *Böttcher-Bau, A10 *Böttcher-Bau, A10 *Böttcher-Bau, A10 *Böttcher-Bau, A10 *Böttcher-Bau, A10 *Böttcher-Bau, A10 *Böttcher-Bau, A10 *Böttcher-Bau, A10 *Böttcher-Bau, A10 *Böttcher-Bau, A10 *Böttcher-Bau, A10 *
Legende