Hinweise zur den Belegabgabe
Abgabe: Die Belegabgabe ist auf der Aufgabenstellung genau beschrieben. AKtuell erfolgt die Belegabgabe per E-Mail. Die Belege werden nur einmal täglich kontrolliert. Die kurzfristige Bearbeitung des Beleges vor dem Abgabedatum sollte daher vermieden werden. Alle notwenidgen Informationen zur Erstellung von technischen Zeichnungen sind aus der Lehrveranstaltung "Darstellungslehre/CAD" bekannt. Nutzen Sie daher das Skript der Lehrveranstaltung und die hier aufgeführten Hinweise.Fragen zu den Belegen können auch in folgendem Forum gestellt werden: OPAL
Hinweise zu den Belegaufgaben
- Formen und Maße der Querschnitte
- Hinweise zum Erzeugen eines Buchstabens
- Beispiele für den Zusammenbau
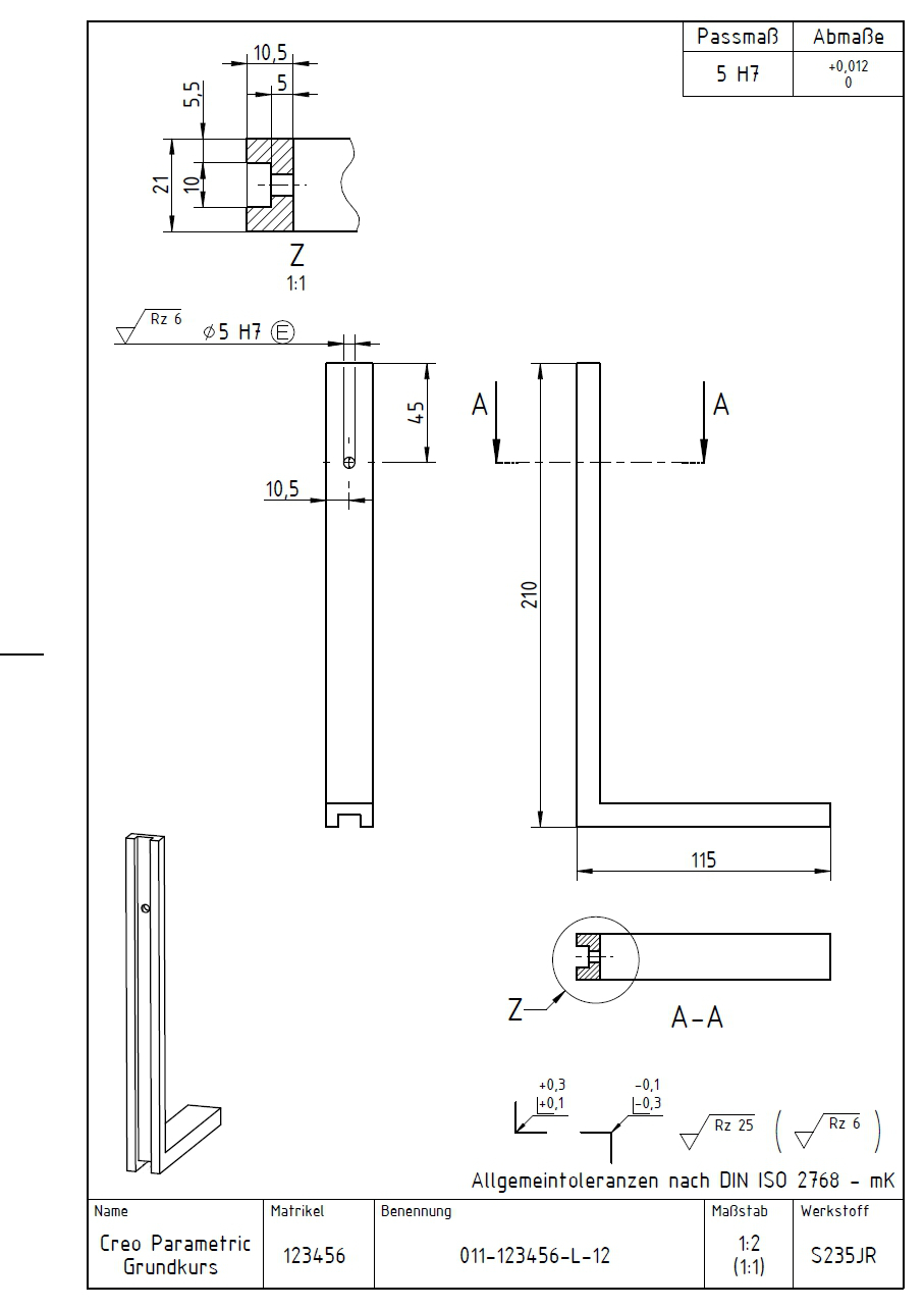
- Musterzeichnung [pdf]
- Hinweise für DIN-gerechte Zeichnungen
- Häufige Fehler in den Belegen
Zertifikate
Die Ausgabe der Zertifikate über eine erfolgreiche Kursteilnahme erfolgt
Dienstag bis Donnerstag, 09:30 - 11:30 Uhr
bei Frau Schwankl im Raum 2/A313.